Sveitarstjórn Svalbarðsstrandarhrepps samþykkti á fundi sínum 21. maí 2024 að vísa tillögu vegna breytinga á deiliskipulagi Eyrarinnar á Svalbarðseyri í kynningu skv. 4. mgr. 40 gr. skipulagslaga nr. 123/2010.
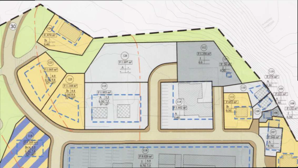
Deiliskipulagsbreytingin nær yfir svæði austan Svalbarðseyrarvegar og felur m.a. í sér breytingu á lóðum og byggingarreitum auk skilgreiningu byggingarheimilda. Breytingin nær til lóða nr. 108-116, 126 og Svalbarðseyrarvegar 7A og 7B en helsta breytingin er að gert er ráð fyrir 3-4 nýjum byggingum á lóðum nr. 110, 112 og 126. Þá er gerð breyting á gatnakerfi vegna breyttra lóðarmarka.
Skipulagstillagan er aðgengileg á skrifstofu Svalbarðsstrandarhrepps, Ráðhúsinu, 606 Akureyri, milli 20. júní og 4. júlí 2024, á heimasíðu sveitarfélagsins, www.svalbardsstrond.is og á vef Skipulagsgáttar, www.skipulagsgatt.is undir málsnúmeri 784/2024. Þeim sem telja sig eiga hagsmuna að gæta er hér með gefinn kostur á að koma athugasemdum á framfæri til 4. júlí 2024. Hægt er að koma athugasemdum á framfæri undir málinu á vef Skipulagsgáttar með innskráningu rafrænna skilríkja. Frekari upplýsingar er hægt að nálgast hjá Skipulags- og byggingarfulltrúa Eyjafjarðar, Skólatröð 9, 605 Akureyri, eða í tölvupósti á netfangið sbe@sbe.is.
Opið hús vegna kynningarinnar fer fram á skrifstofu sveitarfélagsins, Ráðhúsinu, miðvikudaginn 26. júní nk. milli kl. 13:00 og 15:00 og mun skipulagsfulltrúi vera viðstaddur og veita upplýsingar og taka við athugasemdum um tillöguna.
Skipulags- og byggingarfulltrúi
Svalbarðsstrandarhreppur - Ráðhúsinu Svalbarðseyri, 606 Akureyri
Kennitala: 640269-2279 - Bankareikn.: 0162-26-075801